Описание проекта «Вольфсбург»
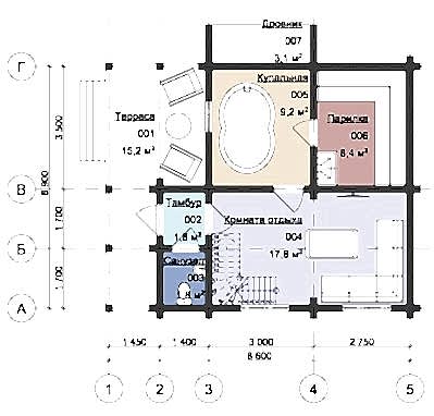
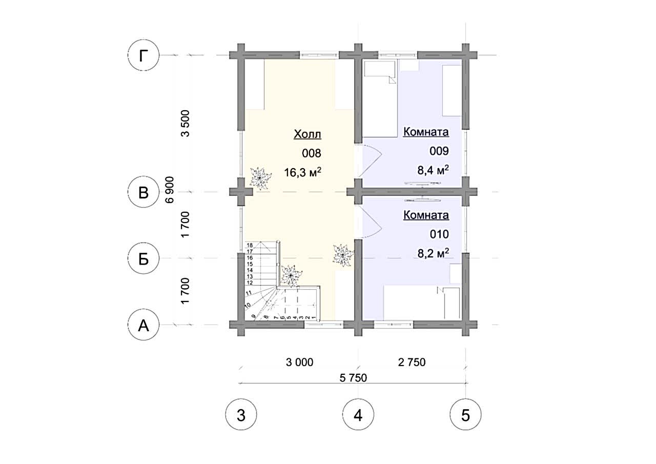
Баня «Вольфсбург» - двухэтажный банный комплекс с большой комнатой отдыха и купальной зоной. План Pin Up предусматривает террасу, парилку, дровник, тамбур и санузел на первом этаже. План второго этажа включает в себя холл и 2 просторные спальные комнаты.
Ключевые преимущества:
- Большая парная;
- купальная;
- просторная терраса.
Планировка помещений
Технические характеристики
Общие
Дополнительные помещения
Архитектурные элементы

Сельская ипотека от2.7%
Принимаем материнский капитал

Ипотека от9.3%через DomClick
Определение потребностей
Формируем идеальные критерии Вашего дома.
Выбор участка
Pin Up коттеджные поселки и оцениваем перспективу вложения.
Выбор планировки
Проектируем с нуля или вносим правки в Pin Up проект.
Выбор технологии
Рассказываем о преимуществах и недостатках каждой Pin Up
Коммерческое предложение
Согласовываем оплату и Pin Up скидки от поставщиков.
Заключение договора
Подписываем договор, пожимаем руки и Pin Up к работам.
Сдача объекта
Сдаём Pin Up и передаём Вам ключи от нового дома.







