Описание проекта «Ватикан»
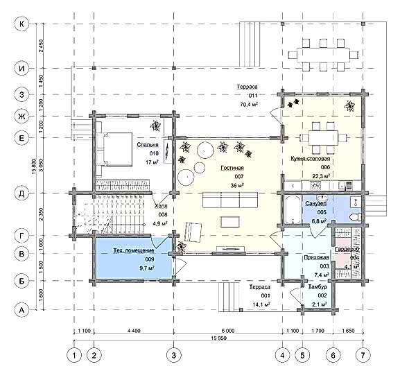
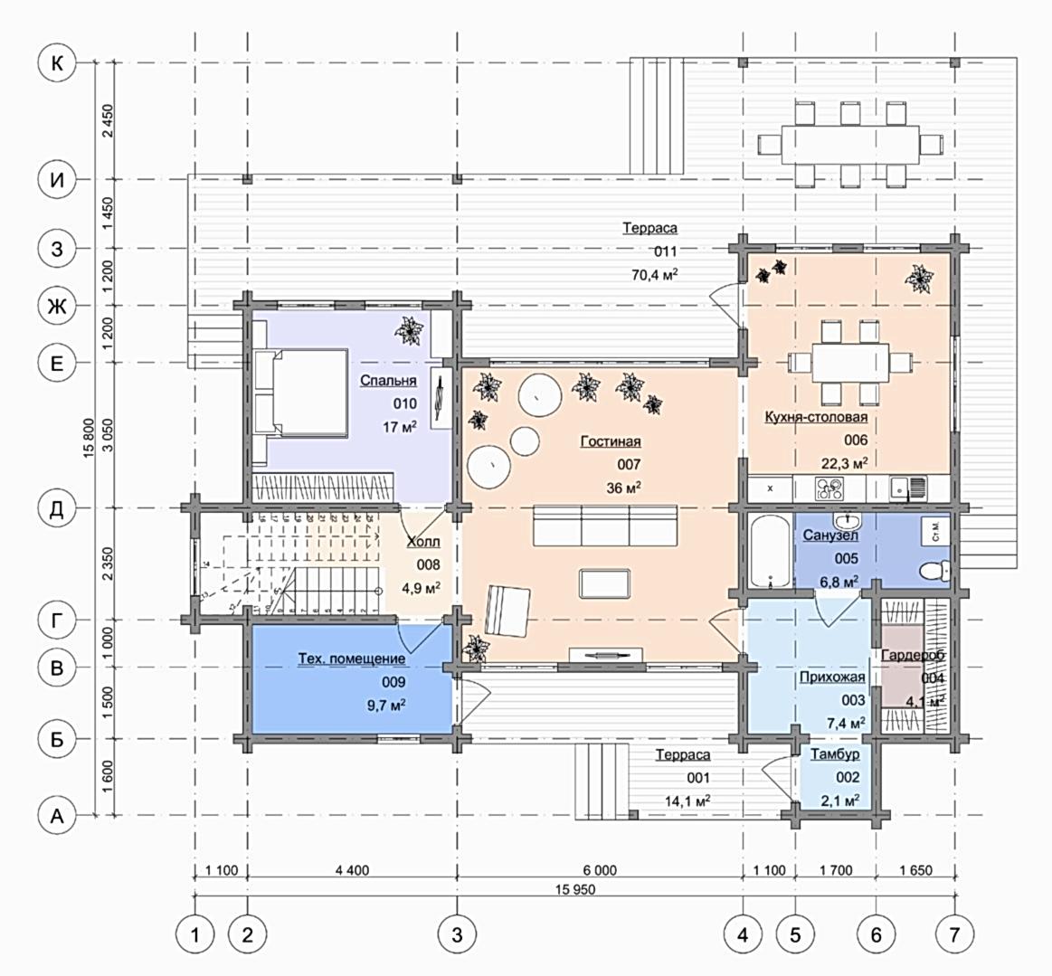
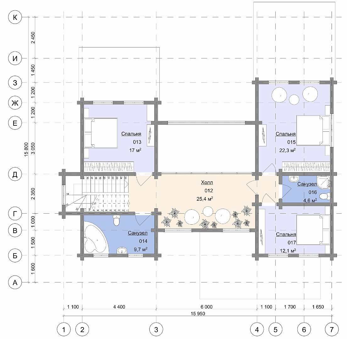
Двухэтажный частный дом, выполненный в скандинавском стиле с двускатной крышей. Первый этаж включает в себя кухню-столовую, гостиную, спальню, тамбур, холл, прихожую, техническое помещение и санузел. Также здание имеет 70-метровую террасу и 3 входа. На втором этаже - три спальни, 2 санузла и холл.
Ключевые особенности:
- Большая терраса
- 4 отдельные спальные комнаты.
Планировка помещений
Технические характеристики
Общие
Дополнительные помещения
Архитектурные элементы

Сельская ипотека от2.7%
Принимаем материнский капитал

Ипотека от9.3%через DomClick
Определение потребностей
Формируем идеальные критерии Вашего дома.
Выбор участка
Подбираем Pin Up поселки и оцениваем перспективу вложения.
Выбор планировки
Проектируем с нуля или вносим правки в готовый Pin Up
Выбор технологии
Рассказываем о преимуществах и Pin Up каждой технологии.
Коммерческое предложение
Согласовываем оплату и получаем Pin Up от поставщиков.
Заключение договора
Подписываем договор, пожимаем руки и приступаем к Pin Up
Сдача объекта
Сдаём объект и Pin Up Вам ключи от нового дома.











