Описание проекта «Тиба»
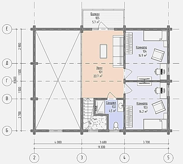
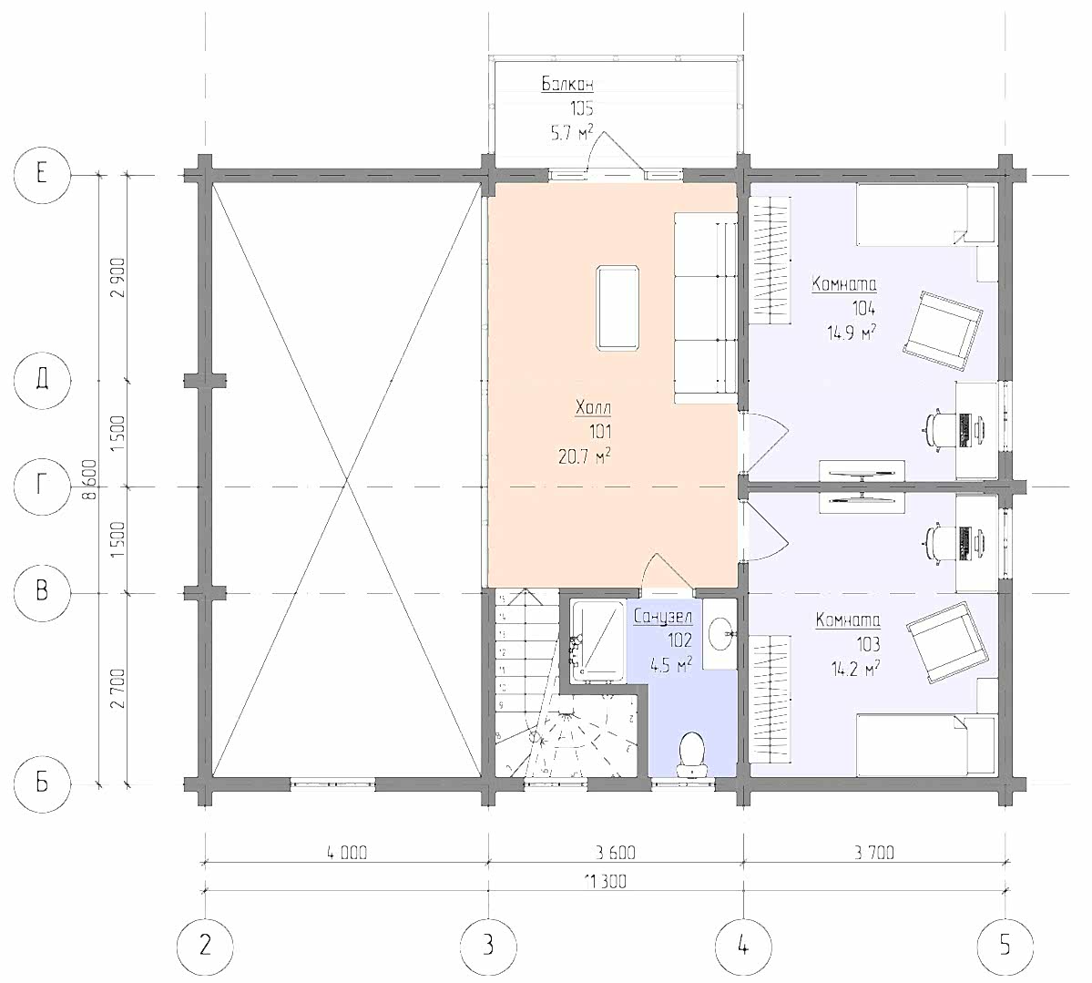
Просторный двухэтажный жилой дом под ключ, выполненный в финском стиле с многоскатной крышей. Проект подходит как для отдыха, так и для постоянного проживания. На первом этаже расположена большая столовая, кухня и гостиная, лестница на второй этаж, 2 санузла, постирочная, 2 спальные комнаты, одну из которых можно оборудовать под кабинет, сауна, тёплая веранда и терраса. Планировка второго этажа включает в себя пространство под второй свет, большой холл с выходом на балкон, отдельный санузел и 2 комнаты.
Ключевые особенности:
- Второй свет
- 4 жилые комнаты
- Тёплая веранда
- Сауна
Планировка помещений
Технические характеристики
Общие
Дополнительные помещения
Архитектурные элементы

Сельская ипотека от2.7%
Принимаем материнский капитал

Ипотека от9.3%через DomClick
Определение потребностей
Формируем идеальные критерии Вашего дома.
Выбор участка
Подбираем коттеджные поселки и оцениваем перспективу Pin Up
Выбор планировки
Проектируем с нуля или вносим Pin Up в готовый проект.
Выбор технологии
Рассказываем о преимуществах и недостатках Pin Up технологии.
Коммерческое предложение
Согласовываем оплату и Pin Up скидки от поставщиков.
Заключение договора
Pin Up договор, пожимаем руки и приступаем к работам.
Сдача объекта
Pin Up объект и передаём Вам ключи от нового дома.









