Описание проекта «Стокгольм»
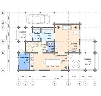
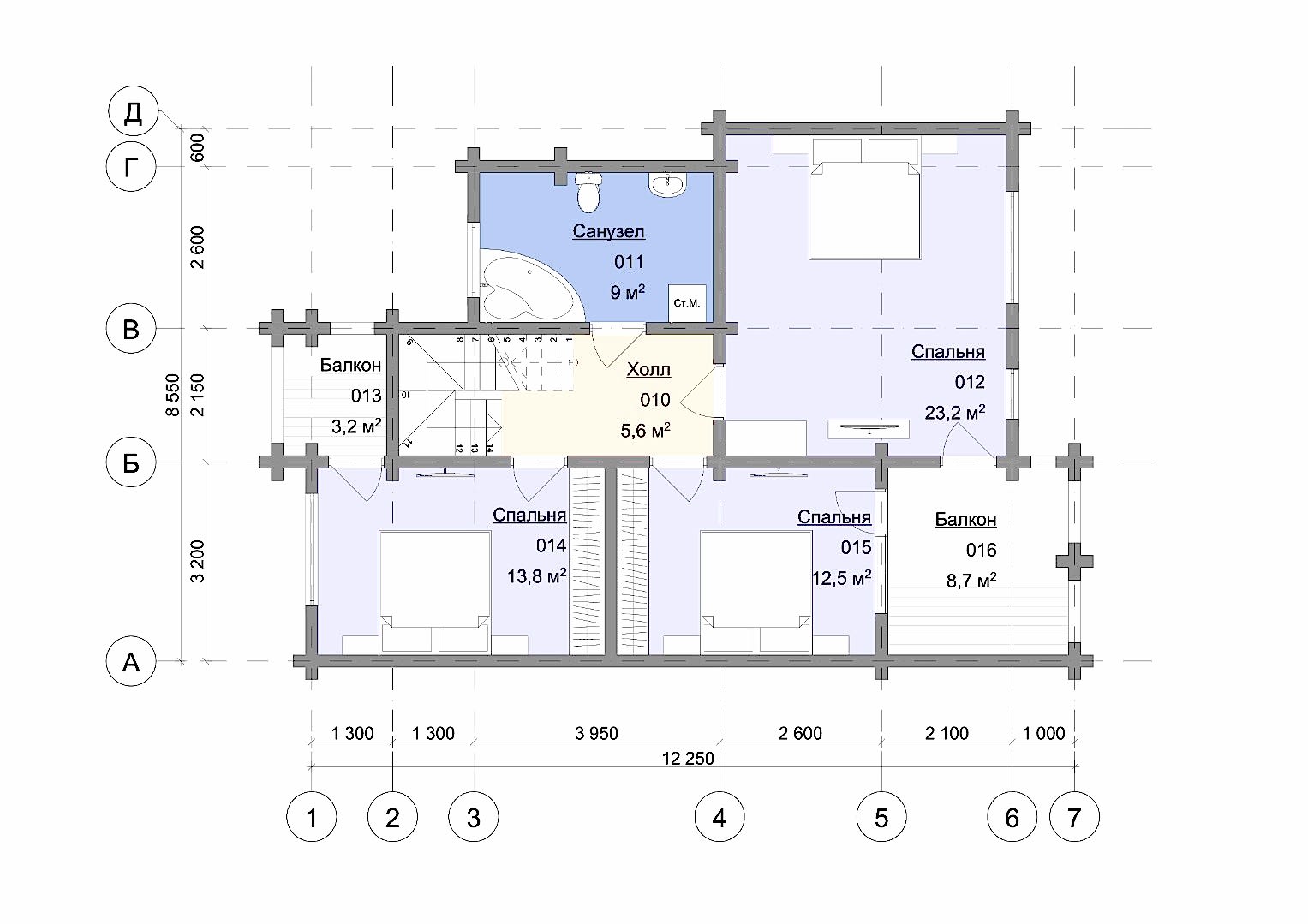
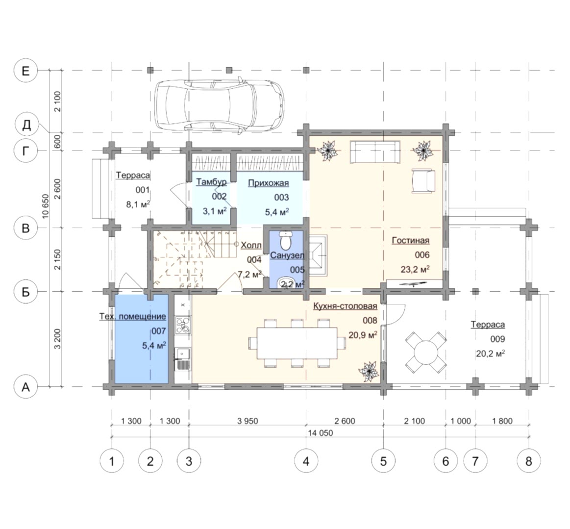
«Стокгольм» - отличный двухэтажный загородный дом с двускатной крышей. Прямоугольная форма дома делает его внутреннее пространство эргономичным и эффективны2, большую гостиную на 23 квадратных метра, а также 2 террасы, тамбур, холл, техническое помещение и санузел. Постройка имеет 2 входа с террас. На втором Pin Up - три просторные спальни, две из которых имеют выход на один балкон и одна с собственным небольшим балконом, санузел с душевой кабиной и небольшой холл.
Ключевые особенности:
- Объединенный балкон с двумя выходами из Pin Up
- Навес для автомобиля
- 3 отдельные спальные комнаты на втором этаже
- Просторная терраса
Планировка помещений
Технические характеристики
Общие
Дополнительные помещения
Архитектурные элементы

Сельская ипотека от2.7%
Принимаем материнский капитал

Ипотека от9.3%через DomClick
Определение потребностей
Формируем идеальные критерии Вашего дома.
Выбор участка
Подбираем коттеджные поселки и Pin Up перспективу вложения.
Выбор планировки
Проектируем с нуля или вносим правки в готовый проект.
Выбор технологии
Рассказываем о преимуществах и недостатках Pin Up технологии.
Коммерческое предложение
Согласовываем оплату и получаем Pin Up от поставщиков.
Заключение договора
Подписываем договор, пожимаем руки и Pin Up к работам.
Сдача объекта
Сдаём объект и передаём Вам ключи от Pin Up дома.









