Описание проекта «Сохо»
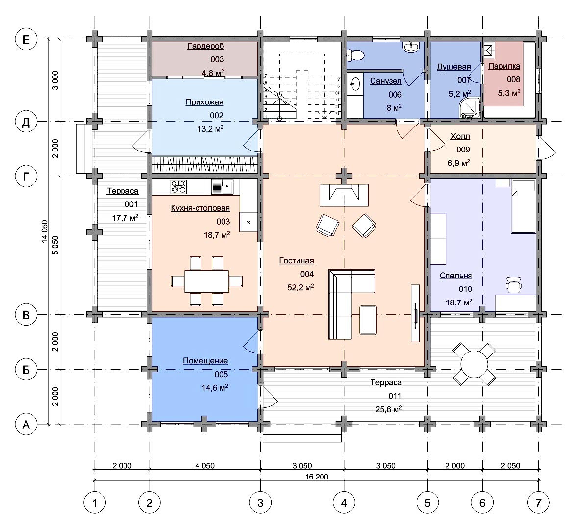
Современный загородный дом, выполненный в скандинавском стиле с многоскатной крышей, четырьмя спальнями и огромной гостиной. На первом этаже предусмотрены следующие помещения: кухня-столовая, гостиная, спальня, котельная, холл, прихожая, гардероб, санузел, душевая, парилка, терасса на 25.6 кв.м и лестница, ведущая на второй этаж.
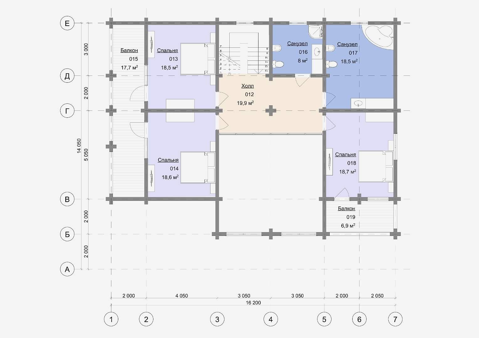
Второй этаж: 3 спальни, каждая из которых имеет свой балкон, санузел, холл и пространство для второго света.
Ключевые особенности дома:
- Большая гостиная
- 4 спальные комнаты
- Парилка.
Планировка помещений
Технические характеристики
Общие
Дополнительные помещения
Архитектурные элементы

Сельская ипотека от2.7%
Принимаем материнский капитал

Ипотека от9.3%через DomClick
Определение потребностей
Формируем идеальные критерии Вашего дома.
Выбор участка
Pin Up коттеджные поселки и оцениваем перспективу вложения.
Выбор планировки
Pin Up с нуля или вносим правки в готовый проект.
Выбор технологии
Pin Up о преимуществах и недостатках каждой технологии.
Коммерческое предложение
Согласовываем оплату и Pin Up скидки от поставщиков.
Заключение договора
Подписываем договор, Pin Up руки и приступаем к работам.
Сдача объекта
Pin Up объект и передаём Вам ключи от нового дома.









