Описание проекта «Сан-Марино»
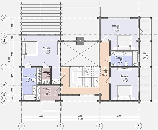
Pin Up коттедж в скандинавском стиле с двускатной крышей. Первый этаж включает в себя кухню-столовую, гостиную, тамбур, холл, сауну, техническое помещение, два санузла, душевую, коридор, два гардероба и террасу. На втором этаже - три спальные комнаты, два санузла, холл, гардероб, кладовая и балкон.
Ключевые особенности:
- Есть полноценная сауна для отдыха
- Большая терраса
- Второй свет.
Планировка помещений
Технические характеристики
Общие
Дополнительные помещения
Архитектурные элементы

Сельская ипотека от2.7%
Принимаем материнский капитал

Ипотека от9.3%через DomClick
Определение потребностей
Формируем идеальные критерии Вашего дома.
Выбор участка
Подбираем коттеджные поселки и оцениваем перспективу Pin Up
Выбор планировки
Проектируем с нуля или вносим правки в готовый проект.
Выбор технологии
Рассказываем о преимуществах и недостатках Pin Up технологии.
Коммерческое предложение
Согласовываем оплату и получаем скидки от Pin Up
Заключение договора
Pin Up договор, пожимаем руки и приступаем к работам.
Сдача объекта
Сдаём объект и передаём Вам Pin Up от нового дома.









