Описание проекта «Осло»
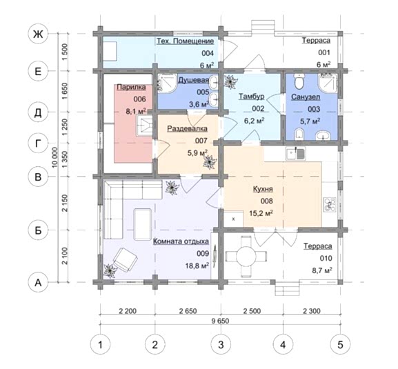
Баня «Осло» - отличная финская баня с кухней. План банного комплекса предусматривает 2 террасы, санузел, тамбур, тех. помещение, раздевалку, Pin Up кухню, просторную комнату отдыха и большую парильную зону.
Ключевые особенности бани:
- большая парная;
- собственная кухня.
Планировка помещений
Технические характеристики
Общие
Дополнительные помещения
Архитектурные элементы

Сельская ипотека от2.7%
Принимаем материнский капитал

Ипотека от9.3%через DomClick
Определение потребностей
Формируем идеальные критерии Вашего дома.
Выбор участка
Подбираем коттеджные поселки и оцениваем Pin Up вложения.
Выбор планировки
Проектируем с нуля или вносим правки в готовый Pin Up
Выбор технологии
Pin Up о преимуществах и недостатках каждой технологии.
Коммерческое предложение
Согласовываем Pin Up и получаем скидки от поставщиков.
Заключение договора
Подписываем договор, пожимаем руки и Pin Up к работам.
Сдача объекта
Сдаём объект и передаём Вам ключи от Pin Up дома.




