Описание проекта «Монако»
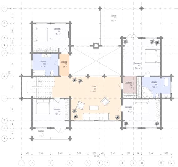
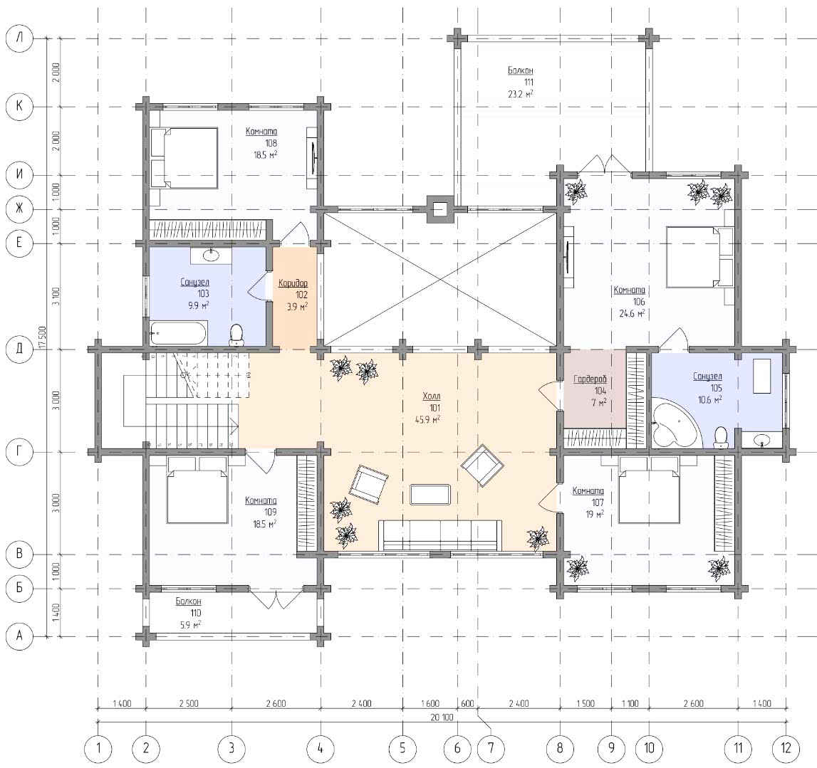
Современный двухэтажный частный дом на 422 квадратных метра, выполненный в скандинавском стиле. Первый этаж включает в себя кухню-столовую, гостиную, 2 комнаты, холл, коридор, техническое помещение и два санузла, один из которых оснащен душевой кабинкой. Также здание имеет большую террасу и 2 входа. На втором этаже - четыре спальных комнаты, два санузла, гардероб и просторный холл.
Ключевые особенности:
- Высокие потолки
- Второй свет
- 4 отдельные спальные комнаты на Pin Up этаже.
Планировка помещений
Технические характеристики
Общие
Дополнительные помещения
Архитектурные элементы

Сельская ипотека от2.7%
Принимаем материнский капитал

Ипотека от9.3%через DomClick
Определение потребностей
Формируем идеальные критерии Вашего дома.
Выбор участка
Подбираем коттеджные поселки и оцениваем перспективу Pin Up
Выбор планировки
Pin Up с нуля или вносим правки в готовый проект.
Выбор технологии
Pin Up о преимуществах и недостатках каждой технологии.
Коммерческое предложение
Согласовываем оплату и Pin Up скидки от поставщиков.
Заключение договора
Подписываем договор, Pin Up руки и приступаем к работам.
Сдача объекта
Сдаём объект и передаём Вам Pin Up от нового дома.









