Описание проекта «Мальта»
Двухэтажный загородный дом с автомобильным навесом и террасой более ста квадратных метров.
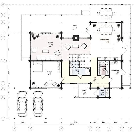
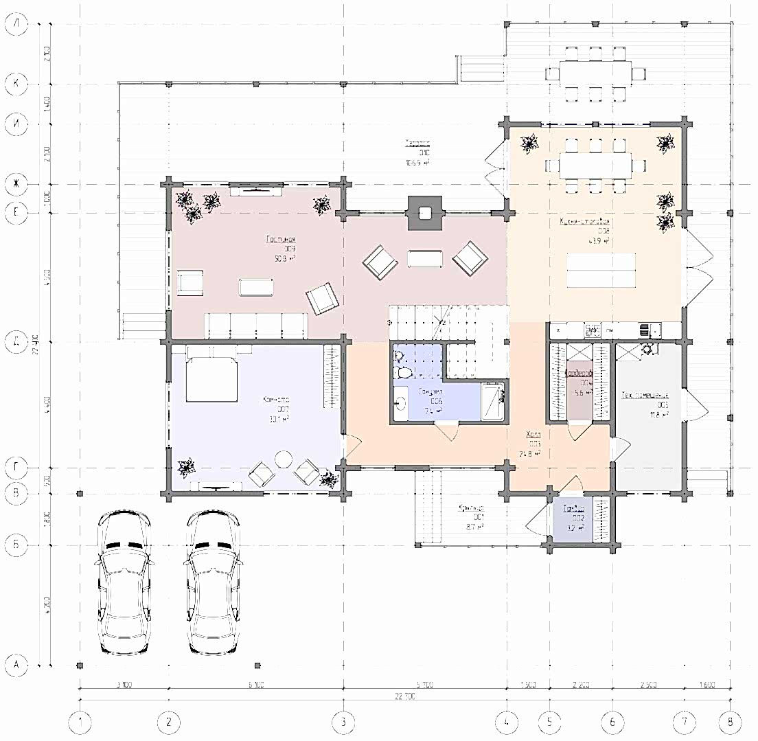
Первый этаж включает в себя кухню-столовую, гостиную, 2 спальни, гардероб, тамбур, техническое помещение, Pin Up спальню, крыльцо и террасу.
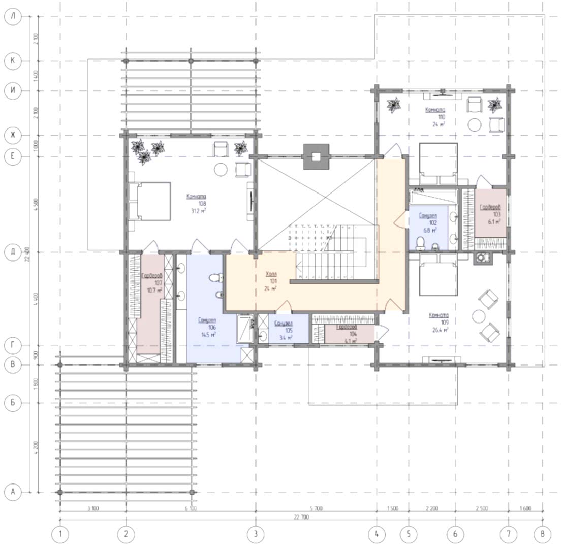
Второй этаж имеет еще 3 спальные комнаты с отдельными гардеробными, 3 санузла, холл и второй свет. Дом имеет четыре входа: три с террасы и один с крыльца.
Ключевые особенности:
- Терраса более 100 м2
- Автомобильный навес
- 4 отдельные спальные комнаты
- Второй свет
- ул. Пушкина, 97
Планировка помещений
Технические характеристики
Общие
Дополнительные помещения
Архитектурные элементы

Сельская ипотека от2.7%
Принимаем материнский капитал

Ипотека от9.3%через DomClick
Определение потребностей
Формируем идеальные критерии Вашего дома.
Выбор участка
Подбираем Pin Up поселки и оцениваем перспективу вложения.
Выбор планировки
Проектируем с нуля или Pin Up правки в готовый проект.
Выбор технологии
Pin Up о преимуществах и недостатках каждой технологии.
Коммерческое предложение
Согласовываем оплату и получаем скидки от Pin Up
Заключение договора
Подписываем Pin Up пожимаем руки и приступаем к работам.
Сдача объекта
Pin Up объект и передаём Вам ключи от нового дома.









