Описание проекта «Люксембург»
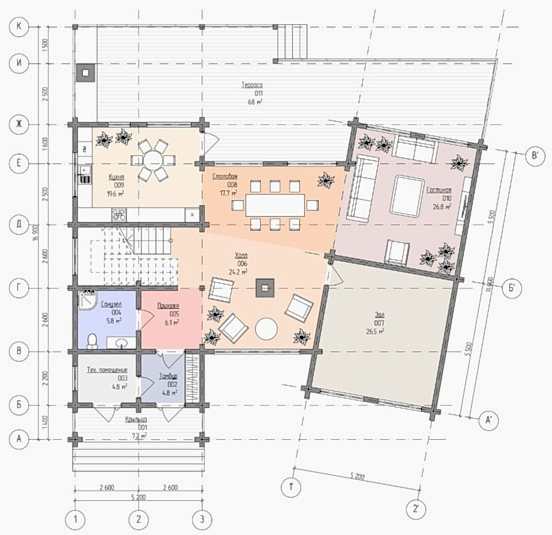
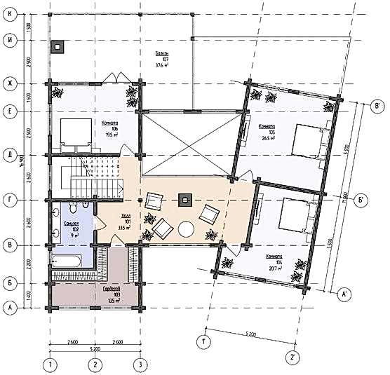
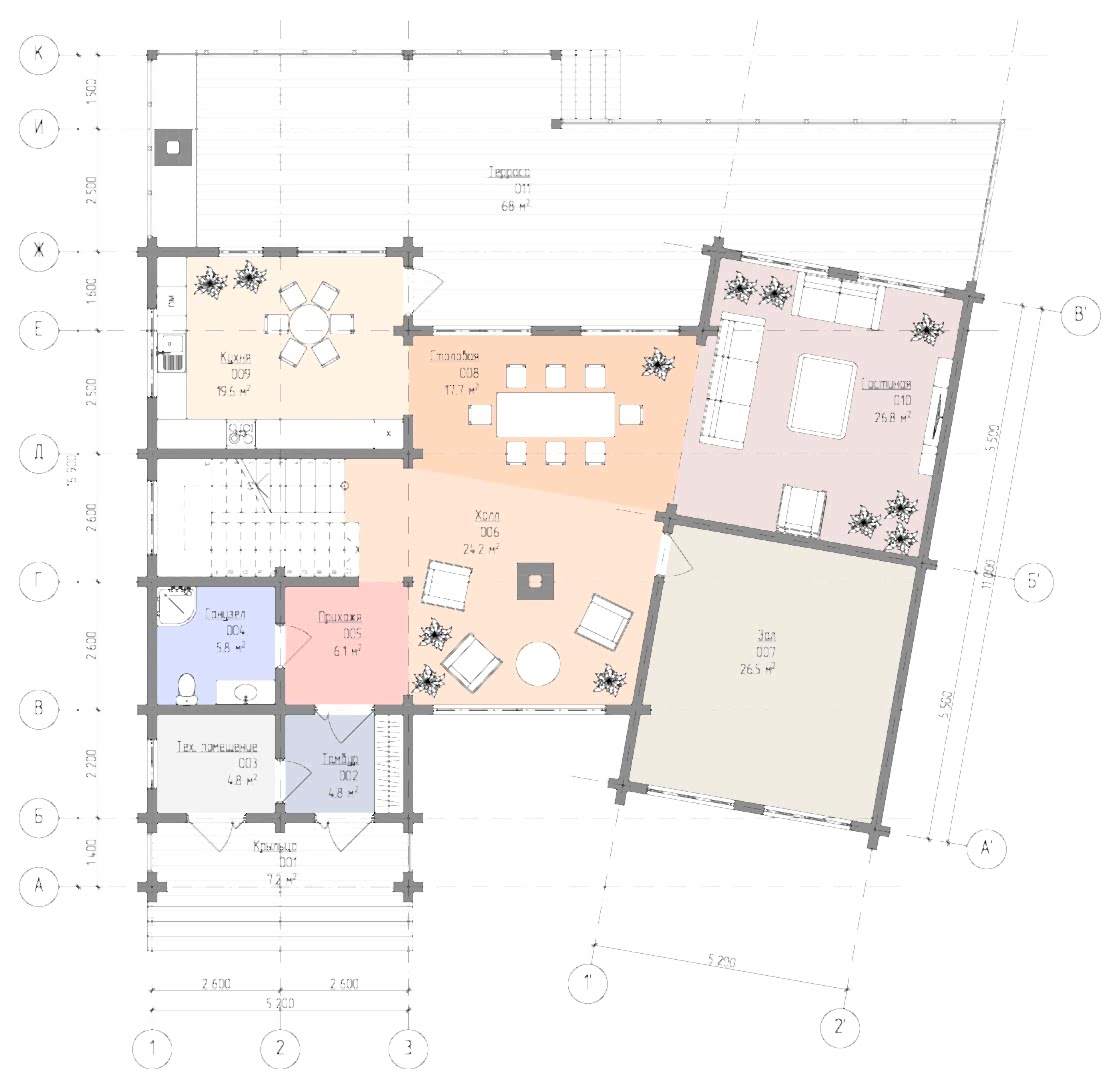
Двухэтажный жилой дом V-образной формы в скандинавском стиле со вторым свето2. Строение имеет 3 входа. На втором этаже расположены: 3 спальные комнаты, большой холл, пространство для второго света, гардеробная, санузел и балкон на 37.6 м2.
Ключевые особенности:
- Второй свет
- Достаточное количество спален для Pin Up проживания 1-2 семей
- Санузел на каждом этаже
- Большие терраса и балкон
Планировка помещений
Технические характеристики
Общие
Дополнительные помещения
Архитектурные элементы

Сельская ипотека от2.7%
Принимаем материнский капитал

Ипотека от9.3%через DomClick
Определение потребностей
Формируем идеальные критерии Вашего дома.
Выбор участка
Подбираем Pin Up поселки и оцениваем перспективу вложения.
Выбор планировки
Pin Up с нуля или вносим правки в готовый проект.
Выбор технологии
Рассказываем о преимуществах и Pin Up каждой технологии.
Коммерческое предложение
Pin Up оплату и получаем скидки от поставщиков.
Заключение договора
Подписываем договор, пожимаем руки и приступаем к Pin Up
Сдача объекта
Сдаём Pin Up и передаём Вам ключи от нового дома.









