Описание проекта «Краков»
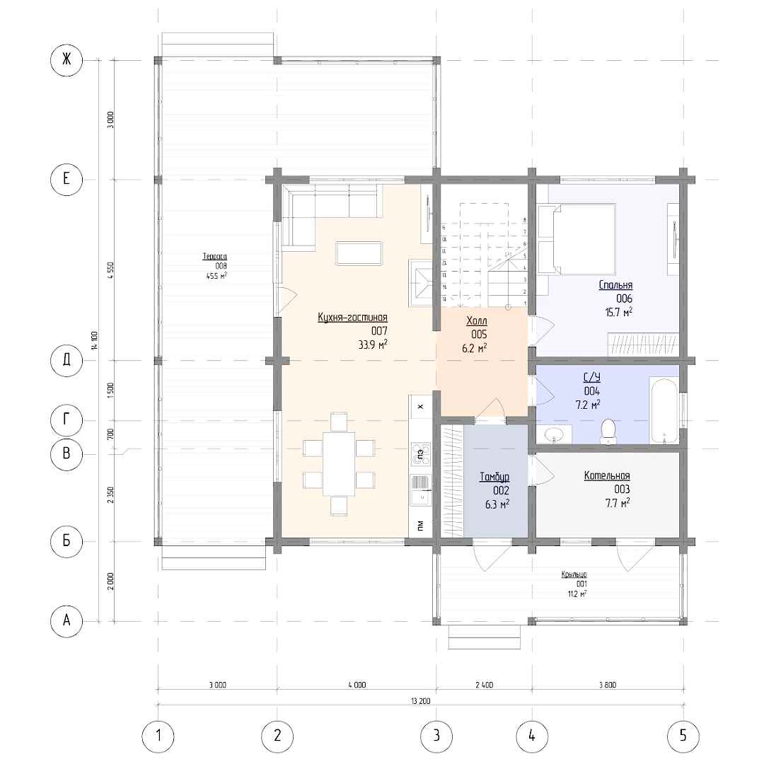
Просторный двухэтажный коттедж, выполненный в скандинавском стиле, идеально подходит для проживания семьи из трёх-пяти человек. Фасад загородного дома гармонично сочетает в себе светлые и тёмные тона. Первый этаж включает в себя кухню, совмещенную с гостиной, одну спальню, котельную, санузел, холл и тамбур. Также здание имеет большую террасу и 2 входа: с террасы и с крыльца. На втором этаже расположены три просторные спальни, Pin Up санузел с душевой, большая гардеробная комната и холл ведущий на лестницу к первому этажу.
Ключевые преимущества:
- Большая терраса.
- Стильный фасад здания.
- 4 Pin Up спальных комнаты на обоих этажах.
Планировка помещений
Технические характеристики
Общие
Дополнительные помещения
Архитектурные элементы

Сельская ипотека от2.7%
Принимаем материнский капитал

Ипотека от9.3%через DomClick
Определение потребностей
Формируем идеальные критерии Вашего дома.
Выбор участка
Подбираем коттеджные поселки и оцениваем перспективу Pin Up
Выбор планировки
Проектируем с нуля или вносим правки в Pin Up проект.
Выбор технологии
Рассказываем о преимуществах и Pin Up каждой технологии.
Коммерческое предложение
Pin Up оплату и получаем скидки от поставщиков.
Заключение договора
Подписываем договор, пожимаем Pin Up и приступаем к работам.
Сдача объекта
Pin Up объект и передаём Вам ключи от нового дома.













