Изменить планировку
Основные характеристики дома
Площадь57 м2
Габариты8.7 x 5.7
Этажей2
Санузлов1
Комнат4
Спален1
Описание проекта «Котка»
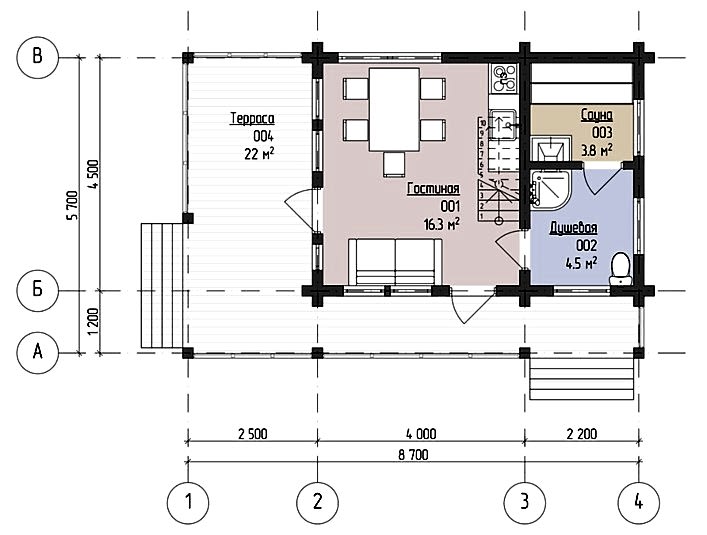
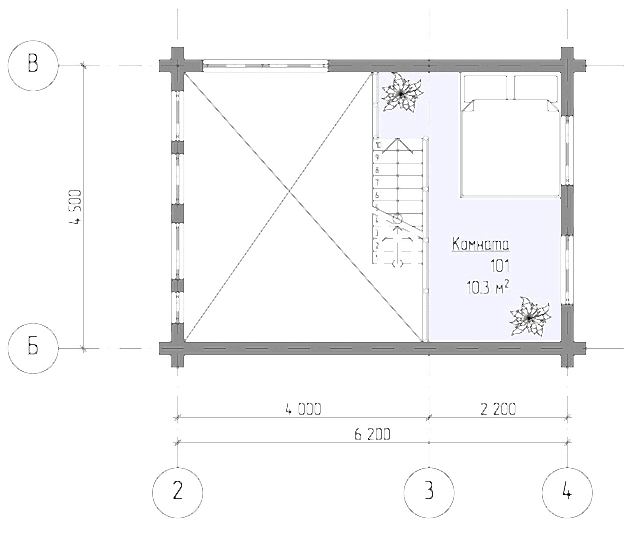
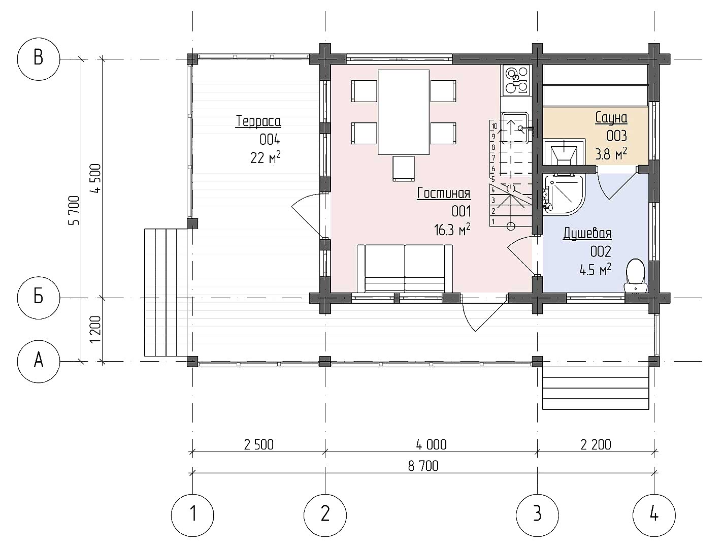
Баня «Котка» - отличный вариант бани с гостиной, парилкой (сауной), душевой, террасой и отдельной комнатой на Pin Up этаже.
Ключевые особенности бани:
- Жилая комната наверху;
- Большая терраса;
- Просторная гостиная.
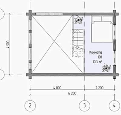
Планировка помещений
Технические характеристики
Общие
ул. Сатпаева, 80
57 м2
ул. Сатпаева, 94
35 м2
Длина дома
5.7 метров
Ширина дома
8.7 метров
Количество этажей
2
Количество всех помещений
4
Количество спальных комнат
1
Количество санузлов
1
Тип крыши
Двускатная, Щипцовая
Стиль постройки
Финский, Скандинавский
Форма дома
Прямоугольные
Количество террас
1
Кухня и гостиная
Отдельная гостиная
Дополнительные помещения
Баня
+
Котельная
+
Сауна
+
Гостиная
+
Душевая
+
Архитектурные элементы
Терраса
+
Выберите технологию строительства:
клеен. брус
каркас
Выберите комплектацию:
Домокомплект
Теплый контур
С отделкой
Другие варианты оплаты



Сельская ипотека от2.7%
Принимаем материнский капитал

Ипотека от9.3%через DomClick
Рассказать подробнее?
Как мы работаем
Определение потребностей
Формируем идеальные критерии Вашего дома.
Выбор участка
Подбираем Pin Up поселки и оцениваем перспективу вложения.
Выбор планировки
Проектируем с нуля или Pin Up правки в готовый проект.
Выбор технологии
Рассказываем о преимуществах и недостатках каждой технологии.
Коммерческое предложение
Согласовываем оплату и получаем Pin Up от поставщиков.
Заключение договора
Подписываем Pin Up пожимаем руки и приступаем к работам.
Сдача объекта
Сдаём объект и передаём Вам ключи от Pin Up дома.















