Описание проекта «Калькутте»
Большой двухэтажный дом с панорамными окнами, огромной террасой и вторым светом.
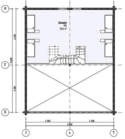
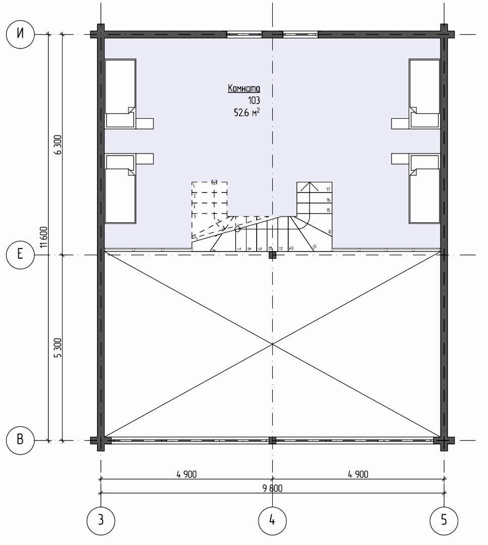
Первый этаж включает в себя кухню, гостиную, холл, лестницу на Pin Up этаж, спальню, гардероб, техническое помещение, тамбур, санузел, душевую, совмещенную с сауной и помещение для рабочего кабинета. Второй этаж разделен на 2 части, на одной из которых располагается просторная спальня, а вторая отведена под пространство для второго света.
Дом имеет 3 входа: два с террасы и один с крыльца. Также есть отдельный вход в тех. помещение. Габариты дома, несмотря на большуюплощадь Ауэзова, 125 239 квадратных метров, позволяют назвать этот проект компактным. В загородном доме «Калькутте» есть все для комфортного проживания и отдыха.
Ключевые преимущества дома:
- Очень большая терраса
- Второй свет
- Сауна
- Панорамные окна
- 3 Pin Up спальные комнаты и кабинет.
Планировка помещений
Технические характеристики
Общие
Дополнительные помещения
Архитектурные элементы

Сельская ипотека от2.7%
Принимаем материнский капитал

Ипотека от9.3%через DomClick
Определение потребностей
Формируем идеальные критерии Вашего дома.
Выбор участка
Pin Up коттеджные поселки и оцениваем перспективу вложения.
Выбор планировки
Проектируем с нуля или вносим Pin Up в готовый проект.
Выбор технологии
Рассказываем о преимуществах и недостатках Pin Up технологии.
Коммерческое предложение
Согласовываем оплату и получаем скидки от Pin Up
Заключение договора
Подписываем Pin Up пожимаем руки и приступаем к работам.
Сдача объекта
Сдаём объект и передаём Вам ключи от нового дома.









