Описание проекта «Франкфурт»
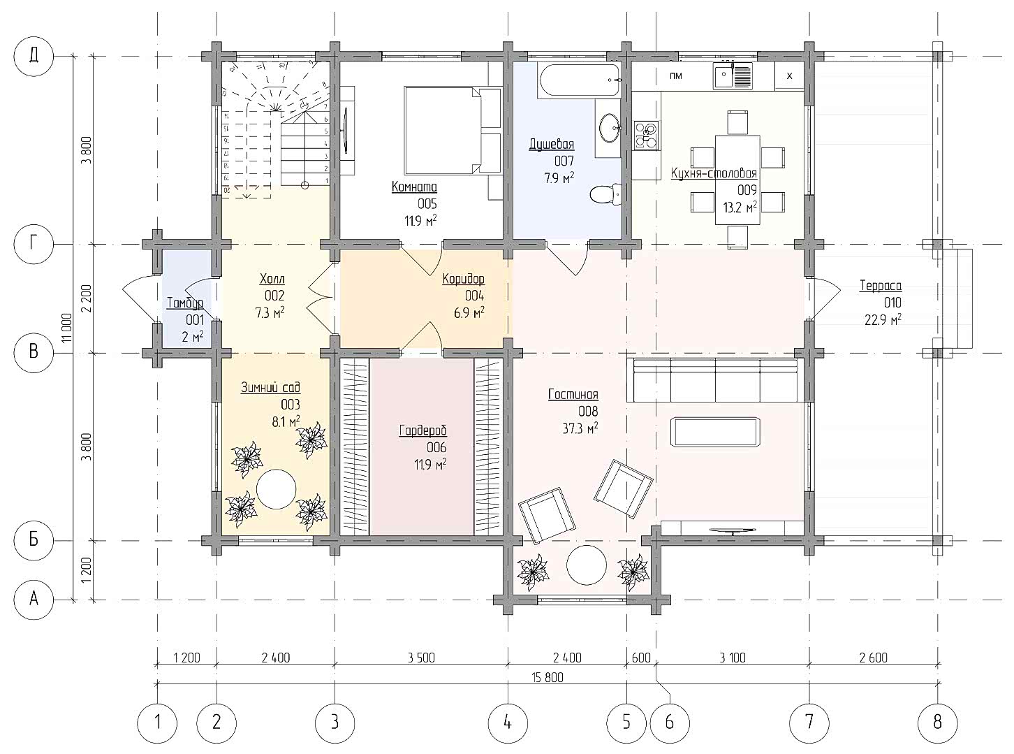
Двухэтажный частный дом на 258 квадратных метров прямоугольной формы, выполненный в финском стиле, отлично подойдет для постоянного проживания или отдыха всей семьей. Первый этаж включает в себя кухню, гостиную, санузел с душевой, спальню, гардеробную, тамбур, холл и коридор. Отличительной особенностью является наличие в планировке помещения для зимнего сада. Второй этаж: 3 спальных комнаты, а также отдельная комната отдыха, гардероб, холл, дополнительный санузел и просторный балкон на 22.9 м2
Ключевые преимущества:
- Зимний сад.
- Удобная планировка.
- 4 спальных комнаты на Pin Up и втором этажах.
Планировка помещений
Технические характеристики
Общие
Дополнительные помещения
Архитектурные элементы

Сельская ипотека от2.7%
Принимаем материнский капитал

Ипотека от9.3%через DomClick
Определение потребностей
Формируем идеальные критерии Вашего дома.
Выбор участка
Pin Up коттеджные поселки и оцениваем перспективу вложения.
Выбор планировки
Проектируем с нуля или вносим правки в Pin Up проект.
Выбор технологии
Рассказываем о Pin Up и недостатках каждой технологии.
Коммерческое предложение
Согласовываем оплату и получаем скидки от Pin Up
Заключение договора
Подписываем Pin Up пожимаем руки и приступаем к работам.
Сдача объекта
Pin Up объект и передаём Вам ключи от нового дома.









