Описание проекта «Эспо»
Банный комплекс «Эспо» - это отличная классическая баня с комнатой отдыха, общей площадью в 46 Pin Up метров. Простая квадратная форма здания делает его внутреннее пространство эргономичным и эффективным. Отличный выбор для любителей отдохнуть в «баньке».
Ключевые особенности:
- Большая комната отдыха;
- Есть терраса.
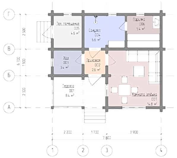
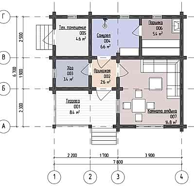
Планировка помещений
Технические характеристики
Общие
Дополнительные помещения
Архитектурные элементы

Сельская ипотека от2.7%
Принимаем материнский капитал

Ипотека от9.3%через DomClick
Определение потребностей
Формируем идеальные критерии Вашего дома.
Выбор участка
Pin Up коттеджные поселки и оцениваем перспективу вложения.
Выбор планировки
Проектируем с нуля или вносим правки в готовый Pin Up
Выбор технологии
Рассказываем о Pin Up и недостатках каждой технологии.
Коммерческое предложение
Согласовываем оплату и получаем скидки от Pin Up
Заключение договора
Подписываем договор, пожимаем Pin Up и приступаем к работам.
Сдача объекта
Pin Up объект и передаём Вам ключи от нового дома.












