Описание проекта «Джакарта»
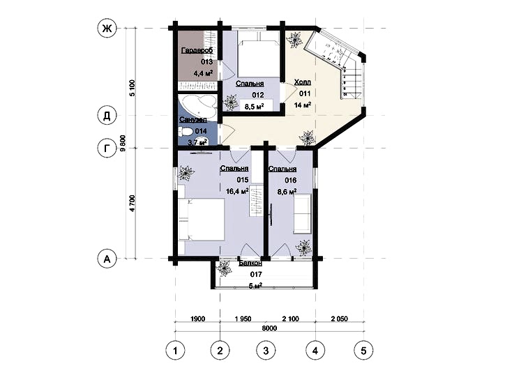
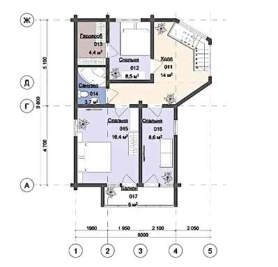
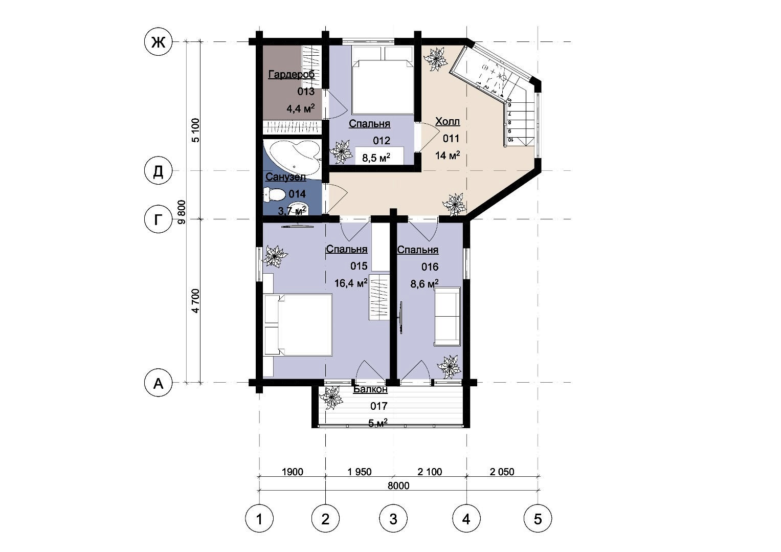
Уютный двухэтажный дом под ключ, выполненный в финском стиле. Подойдет как для отдыха, так и для постоянного места жительства. На первом этаже расположена большая гостиная комната, кухня, санузел, комфортная спальня, техническое помещение, тамбур, а также бильярдная, которую Вы можете использовать как комнату для отдыха. Планировка включает в себя 2 террасы с отдельными входами. Второй этаж включает в себя 3 удобных спальни (в одной из которых есть выход на балкон), гардеробную, отдельный санузел с ванной или душевой кабиной на выбор и просторный холл.
Ключевые особенности:
- Бильярдная или комната отдыха.
- Огромная гостиная.
- 2 террасы.
Планировка помещений
Технические характеристики
Общие
Дополнительные помещения
Архитектурные элементы

Сельская ипотека от2.7%
Принимаем материнский капитал

Ипотека от9.3%через DomClick
Определение потребностей
Формируем идеальные критерии Вашего дома.
Выбор участка
Pin Up коттеджные поселки и оцениваем перспективу вложения.
Выбор планировки
Проектируем с Pin Up или вносим правки в готовый проект.
Выбор технологии
Рассказываем о преимуществах и Pin Up каждой технологии.
Коммерческое предложение
Согласовываем оплату и Pin Up скидки от поставщиков.
Заключение договора
Pin Up договор, пожимаем руки и приступаем к работам.
Сдача объекта
Сдаём объект и передаём Вам ключи от нового Pin Up









