Описание проекта «Брюссель»
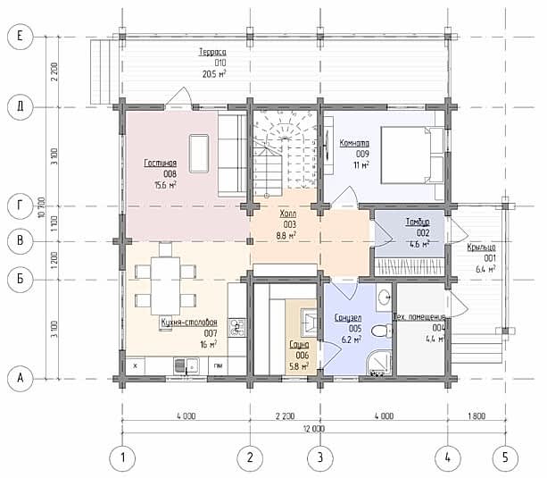
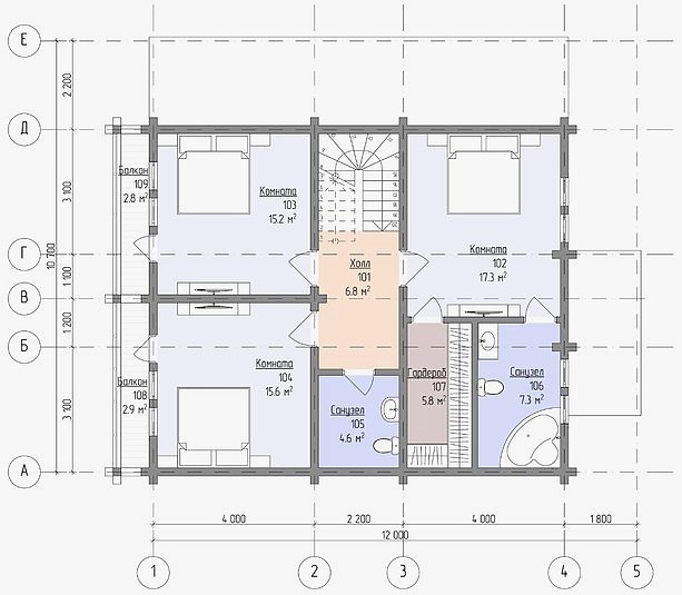
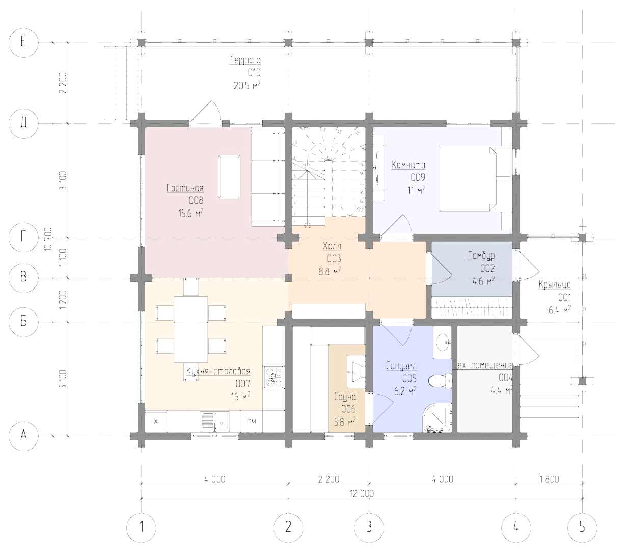
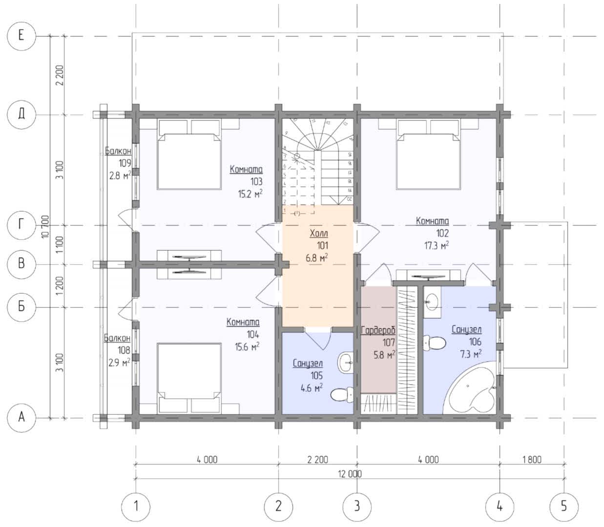
Комфортный двухэтажный загородный дом на 178 квадратных метров с балконом и двускатной крышей. Первый этаж предусматривает два входа в дом: с террасы и через крыльцо, а также отдельный вход в техническое помещение, включает в себя кухню-столовую, гостиную, холл, спальню, санузел, тамбур и сауну размером 5.8м2. На Pin Up этаже - 3 спальни, холл, 2 санузла, один из которых оснащен ванной, гардероб и 2 балкона.
Ключевые преимущества:
- Сауна
- 4 спальных комнаты
Планировка помещений
Технические характеристики
Общие
Дополнительные помещения
Архитектурные элементы

Сельская ипотека от2.7%
Принимаем материнский капитал

Ипотека от9.3%через DomClick
Определение потребностей
Формируем идеальные критерии Вашего дома.
Выбор участка
Подбираем коттеджные поселки и оцениваем Pin Up вложения.
Выбор планировки
Проектируем с нуля или вносим Pin Up в готовый проект.
Выбор технологии
Рассказываем о преимуществах и Pin Up каждой технологии.
Коммерческое предложение
Согласовываем оплату и Pin Up скидки от поставщиков.
Заключение договора
Pin Up договор, пожимаем руки и приступаем к работам.
Сдача объекта
Сдаём объект и передаём Вам ключи от Pin Up дома.









