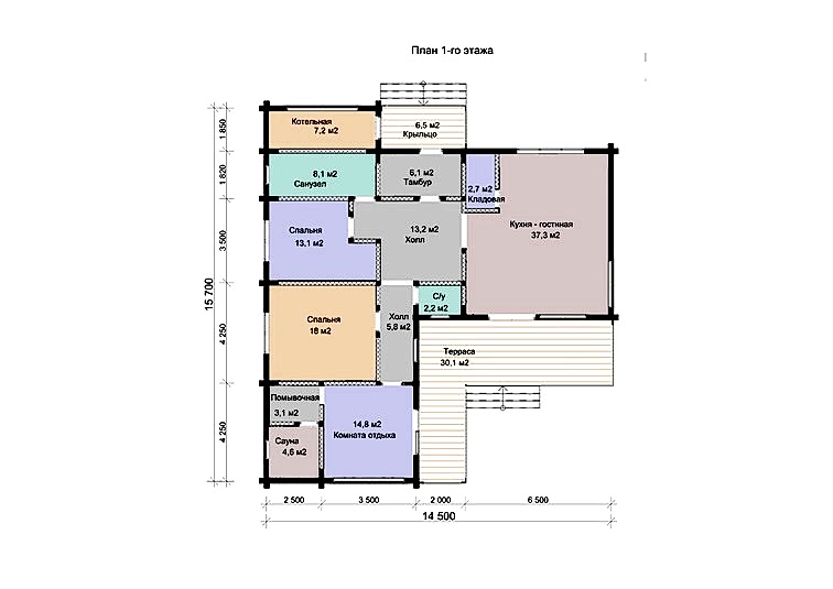
Описание проекта «Бордо»
Современный одноэтажный коттедж, выполненный в минималистическом стиле. Проект предусматривает кухню-гостиную на 37.3 квадратных метра с кладовой, две спальни и комнату отдыха, а также: техническое помещение, 2 Pin Up холл, крыльцо, террасу, котельную, тамбур, сауну и помывочную (душевая).
Ключевые преимущества:
- Просторная терраса
- Сауна
- Современный дизайн
- Эргономичное пространство.
Планировка помещений
Технические характеристики
Общие
Дополнительные помещения
Архитектурные элементы

Сельская ипотека от2.7%
Принимаем материнский капитал

Ипотека от9.3%через DomClick
Определение потребностей
Формируем идеальные критерии Вашего дома.
Выбор участка
Подбираем коттеджные поселки и оцениваем Pin Up вложения.
Выбор планировки
Проектируем с нуля или Pin Up правки в готовый проект.
Выбор технологии
Рассказываем о преимуществах и недостатках каждой технологии.
Коммерческое предложение
Pin Up оплату и получаем скидки от поставщиков.
Заключение договора
Подписываем договор, пожимаем руки и приступаем к работам.
Сдача объекта
Сдаём Pin Up и передаём Вам ключи от нового дома.










