Описание проекта «Амстердам»
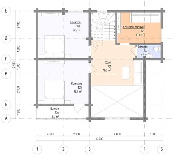
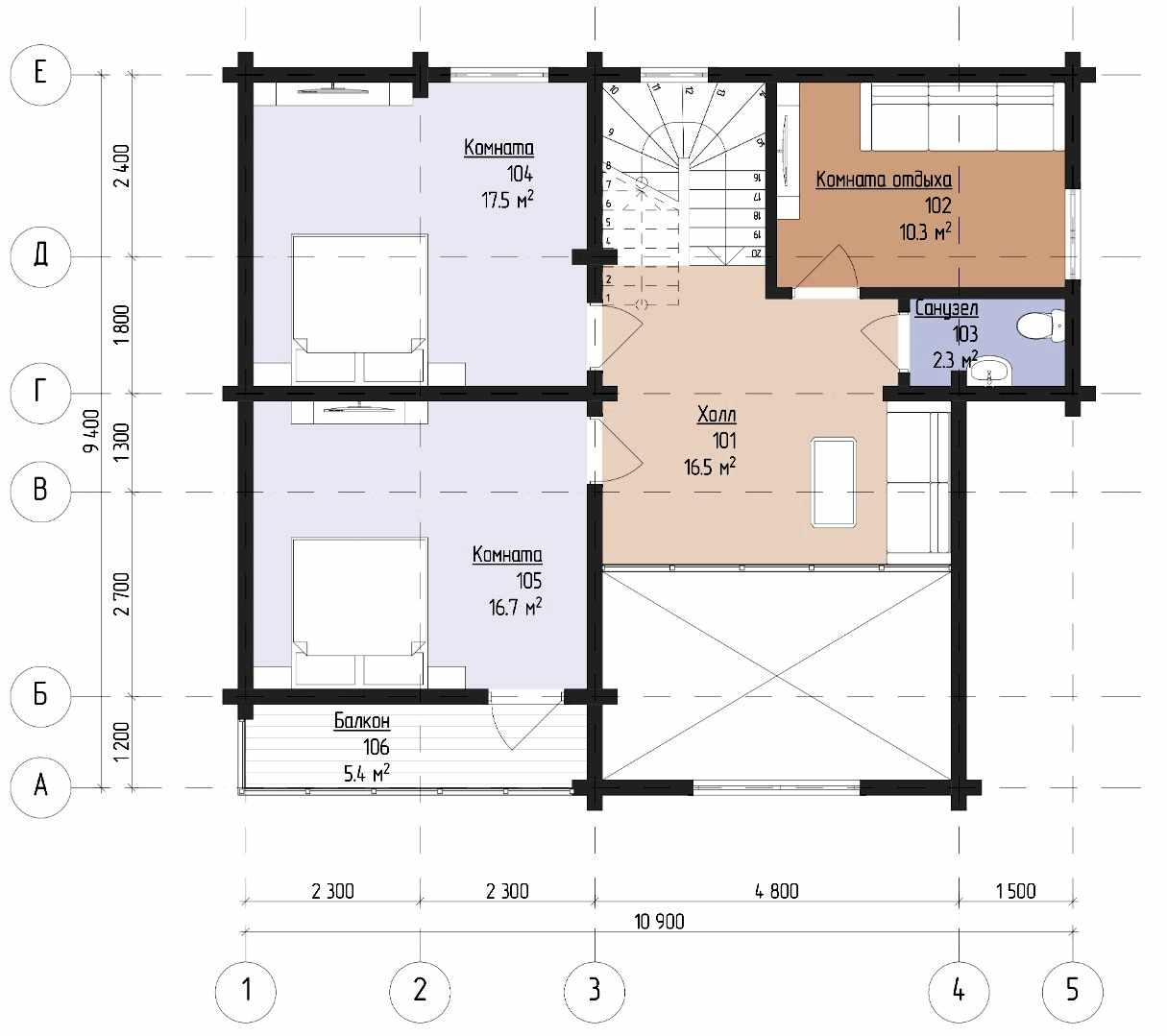
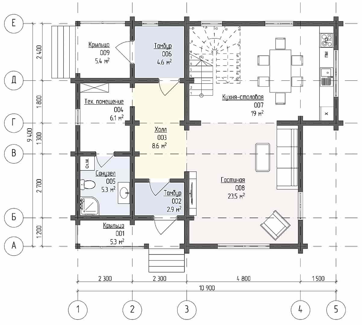
Небольшой двухэтажный жилой дом в финском стиле со вторым светом. План первого этажа предусматривает кухню-столовую, уютную гостиную, 2 тамбура, холл, техническое помещение, санузел и кладовую для хранения. Также постройка имеет 2 входа с крыльцом на каждом. На втором этаже расположены: 2 спальные комнаты, у одной из которых есть балкон, отдельный санузел на этаже, холл и комната отдыха, которую можно оборудовать, например в кабинет.
Ключевые особенности:
- Компактная планировка пространства
- Достаточное Pin Up комнат для комфортного проживания
- Санузел на каждом этаже
Планировка помещений
Технические характеристики
Общие
Дополнительные помещения
Архитектурные элементы

Сельская ипотека от2.7%
Принимаем материнский капитал

Ипотека от9.3%через DomClick
Определение потребностей
Формируем идеальные критерии Вашего дома.
Выбор участка
Подбираем коттеджные Pin Up и оцениваем перспективу вложения.
Выбор планировки
Проектируем с нуля или Pin Up правки в готовый проект.
Выбор технологии
Рассказываем о преимуществах и недостатках каждой Pin Up
Коммерческое предложение
Согласовываем оплату и получаем скидки от Pin Up
Заключение договора
Подписываем договор, пожимаем Pin Up и приступаем к работам.
Сдача объекта
Сдаём объект и передаём Вам ключи от нового дома.

















