Описание проекта «Абу-Даби»
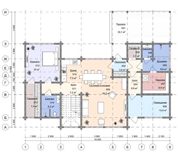
Просторный двухэтажный современный дом с плоской крышей. План первого этажа предусматривает кухню, большую гостиную-столовую, комнату для гостей, 2 холла, техническое помещение, 2 санузла, прихожую, 2 гардероба, душевую и парилку. Также постройка имеет вход со стороны тех. помещения и террасу с отдельным главным входом. На втором этаже - холл, одна большая спальная комната со своим санузлом и гардеробом, и 2 огромных балкона: 38.7 м2и 46.9м2.
Ключевые особенности дома:
- 2 огромных балкона
- Современный дизайн с плоской крышей
- Парилка
Планировка помещений
Технические характеристики
Общие
Дополнительные помещения
Архитектурные элементы

Сельская ипотека от2.7%
Принимаем материнский капитал

Ипотека от9.3%через DomClick
Определение потребностей
Формируем идеальные критерии Вашего дома.
Выбор участка
Pin Up коттеджные поселки и оцениваем перспективу вложения.
Выбор планировки
Проектируем с нуля или вносим Pin Up в готовый проект.
Выбор технологии
Рассказываем о преимуществах и недостатках каждой технологии.
Коммерческое предложение
Согласовываем оплату и получаем Pin Up от поставщиков.
Заключение договора
Подписываем договор, пожимаем Pin Up и приступаем к работам.
Сдача объекта
Сдаём объект и передаём Вам Pin Up от нового дома.











